高级脸|银亿东岸 | 拥有让人一见钟情的“高级脸”是种什么体验?

文章图片

文章图片

文章图片

文章图片

文章图片

文章图片

文章图片

文章图片

文章图片

客观世界的视觉现象本身是无意义的 ,
有意义的东西是感觉 。
--马列维奇
【项目·信息】
地址 / 银亿东岸
户型 / 四室两厅
面积 / 200㎡
风格 / 现代简约
设计施工 / 浙江南鸿装饰
1、关于作品本案以现代简约为主题 , 简洁明快的设计风格为主调 , 着力体现家的精致与个性 , 符合现代人的生活品味 。
公共区域整体采用暖咖和黑、白色调 , 温和亲切又带着现代感的利落洒脱 , 木格栅增强视觉效果 , 软装上则重点用橙色点缀 , 烘托温馨气氛与活力感受 。
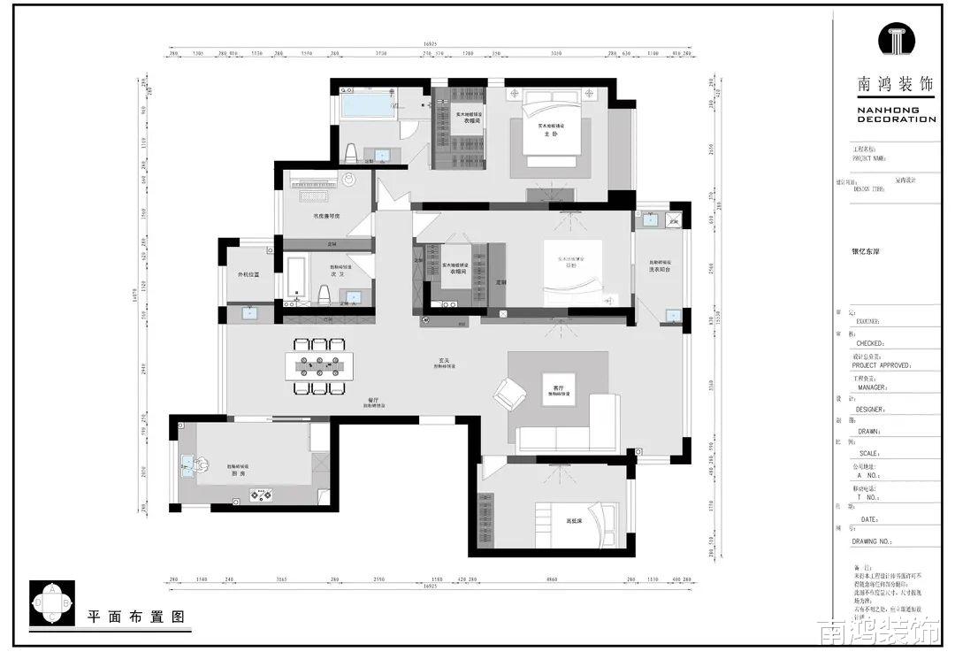
2、户型图
3、设计落地玄关
ENTRANCE
玄关端景处一幅格外醒目的复刻画 , 大色块的红彰显热烈、前卫 , 寓意主人对新生活的爱和热忱 , 从今往后 , 要把每一天都过得“热气腾腾”!
客厅
LIVING ROOM
客厅 , 暖咖色伴随着温柔的观感 , 让时光也仿佛静止于此 。 没有特别多收纳设计 , 这里的一切布置均以“美”为第一要义 。
电视背景墙的设计 , 低调中透着华丽 。 高颜值的大理石砖搭配错落有致的木格栅 , 冷暖结合 , 细节处再点缀光影 , 简洁而富有格调 。
木质格栅 , 素来自带一种东方禅意之美 , 虚实相生 , 正是架构意境的独到方式 。 木饰面板中藏起通往次卧的房门 , 视觉高度统一 。 沙发与茶几选择低矮款式 , 有利于纵向拉伸层高 。
餐厅
DINING ROOM
一个优秀的餐厅 , 光靠视觉 , 就能成功挑动你的味蕾 , 再平凡的食物也因此裹上了一层美好滋味 。
整排餐边柜兼做酒柜 , 玻璃柜内藏酒 , 储物柜里存放食品 , 实用性与美观度都是一流 。 窗边做了小水吧 , 延续厨房的功能 , 餐前餐后的手部清洁也更方便 。
在这里每天给孩子做一顿爱心早餐 , 给爱人煮一壶香醇的咖啡 , 幸福的感觉就这样渐渐氤氲开来 。
厨房
KITCHEN
厨房宽敞明亮 , 黑色橱柜较一般橱柜而言更能凸显质感 , 功能设备完善 , 在吊顶上也做足了功夫 , 造型感与线条感呼应整体风格 。
过道
CORRIDOR
温润的木材非常容易给人亲近的感觉 , 无形中就消弭掉空间与居者的距离 。 过道一侧设计储物区域 , 层架上适合摆放书籍、小饰品等 , 空间瞬时生动了起来 。
特别声明:本站内容均来自网友提供或互联网,仅供参考,请勿用于商业和其他非法用途。如果侵犯了您的权益请与我们联系,我们将在24小时内删除。
