|见过最干净的家,入住一年后,依然窗明几净,太让人羡慕了

文章图片

文章图片

文章图片

文章图片

文章图片

文章图片

文章图片

文章图片

文章图片

文章图片
都说新房装修好之后 , 不管有多干净有多整洁 , 随着入住时间加长 , 都会变得乱糟糟的 。 可事实上 , 一个整洁、干净的居住空间 , 不仅和设计有关 , 也和每个人的生活方式有关 。 就比如本期案例中的屋主 , 虽说入住新房已经有一年多的时间了 , 但由于她每天都能坚持打理 , 所以整个空间看起来就和刚装修好似的 。 同时 , 合理的收纳布局 , 还让空间做到了整洁利落 , 真的是既让人佩服 , 又让人羡慕 。
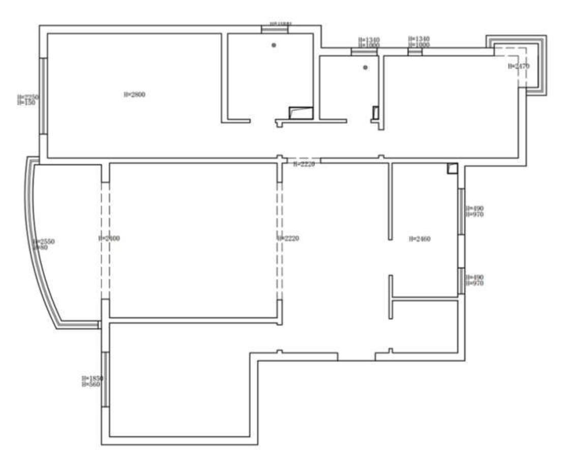
原始结构图
【|见过最干净的家,入住一年后,依然窗明几净,太让人羡慕了】新房坐标北京 , 建面150㎡ , 三室两厅两卫的格局 , 屋主是一对新婚小夫妻 。 空间结构整体较为方正 , 基本上能满足屋主夫妇的需求 。 唯一比较遗憾的 , 就是缺少一个独立的玄关区 。 而对于新房的期待 , 屋主夫妇则都倾向断舍离的生活方式 。 因此 , 整个空间也是以现代简约风来定位的 。
平面方案图
结合现有的空间情况 , 布局改造如下
1、入户增加玄关隔断 , 使空间功能更加完整 。
2、厨房做开放式设计 , 进一步提高空间的通透性 。
3、南阳台以休闲区来定位 , 并打造出一个女主私属的小空间 。
玄关
打破传统的封闭式玄关结构 , 并用金属格栅做半开放式设计 , 既保留了原空间应有的通透性 , 又凸显出了现代元素的质感 。 同时 , 一组轻盈的悬挂式抽屉设计 , 也解决了一些小物品的收纳需求 。
入户侧面的储物间 , 则用柜体做了隐藏设计 , 这样既做到了工整统一 , 搭配上旁边黑色元素后 , 也加深了空间层次 。 同时 , 柜体还做了一分为二的设计 , 一边用来收纳日常的鞋子 , 一边做成平开门 , 非常巧妙 。
客厅
客厅以白色调为主 , 可以让空间显得更加纯粹、干净;不同饱和度的蓝调元素运用 , 则在冷静中做到了克制 。而给地面铺上木地板 , 最大化提高了居住舒适性 , 并且还为空间增添了一抹温暖的气息 。
沙发墙没有做过多的设计 , 直接用一幅色彩画来点缀 , 巧妙打破了白色的单调 , 让空间层次显得更加立体有质感 。
电视墙同样做了留白处理 , 一组悬挂式功能柜配置 , 既提供了大量的收纳 , 又表现出了轻盈的视觉感 。 而黑白两色的吊灯、装饰画配置 , 则在丰富空间的前提下 , 又为空间增添了一抹趣味性 。
特别声明:本站内容均来自网友提供或互联网,仅供参考,请勿用于商业和其他非法用途。如果侵犯了您的权益请与我们联系,我们将在24小时内删除。
