|简约实用才是绝绝子

文章图片

文章图片

文章图片

文章图片

文章图片

文章图片
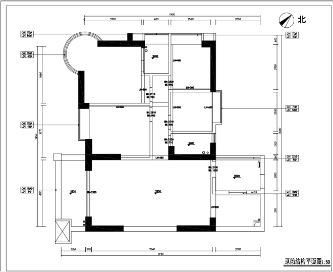
本案最初定位为改善型住宅 , 旧屋大小已经无法满足家人的日常了 , 屋主希望这套新宅未来可以更好的让五口之家学习玩耍与生活 。 在户型改造上需要优先解决主卧空间零碎和厨房利用率低的情况;以及更大的收纳量 。
原户型图缺点:主卧空间零碎和厨房利用率低 , 收纳空间不足 。
经设计后:调整了主人房与主卧开门位置 , 让主卧具有了不受干扰的睡眠空间且有更大的收纳量 。 拆除玄关与厨房部分墙体之后 , 我们的视线可以顺着入户阳台漫射进来的阳光 , 一直延伸到门廊 。
进门口 , 在入户花园窗下整面鞋柜满足家里鞋子和家政用品的收纳 , 超大的原木色台面也做了加深 , 可以尽情处理快递包裹 。
转角处利用百叶柜 , 隐藏了原本燃气公司不允许暗埋的燃气表+管道+燃气热水器 。
厨房原来的窗户较小 , 我们扩大之后协调了窗户方正呆板的比例 , 也为厨房引入了明亮的自然采光 。
灰色调的沙发背景隐藏了大面积的承重结构 , 在暖色的隐藏光的烘托下 , 让整个客厅温馨起来 。 褐色系真皮沙发、大理石茶几与空间融为一体 , 灰色瓷砖递减冷感 , 低调而细腻地描绘出屋主的生活状态 。 加上自然通透的日照光线 , 整个空间的现代感被晕染地更加柔和 。
厨房原本深度是两米左右 , 这个空间做L型橱柜过于浪费 , 深U又太拥挤 , 满足不了2人同时烹饪的需求 , 所以现在调整为深浅柜的设计 , 保留了U型空间的便利 , 在窗下还可以操作多样小厨电 , 把使用率放大到极致 。
餐厨部分通过多轨道移门连通在了一起 ,
白色餐柜负责收纳了两娃零食、日常茶饮和家庭日杂囤货 , 为了兼顾西厨功能 , 加装了耐热抗污的人造石板 。
为了享受随时饮茶的快乐 , 设计阶段我们确定了管线机的需求 , 水电改造时分别从厨房预埋了净水PE管和餐柜穿线管 , 完成后的餐厨空间美观又舒适 。
借用过道做了一面储物柜体 , 让原本狭长单调的过道 , 拥有收纳空间 。
原来的阳台封了起来 , 阳台放置洗衣机和洗衣台 , 叠层的将洗衣机和烘干机让空间释放出来 。
起居室是一天当中屋主恢复元气的地方 , 所以我们在白色的墙面调中加入了温润的墨绿色 , 与暗色地砖一起传递出沉静优雅的同时 , 也维持了空间的整体观感 , 营造出惬意与恬适的氛围 。
【|简约实用才是绝绝子】
特别声明:本站内容均来自网友提供或互联网,仅供参考,请勿用于商业和其他非法用途。如果侵犯了您的权益请与我们联系,我们将在24小时内删除。
