设计师|日式原木风的新家装修,用设计弥补户型的缺陷,打破结构的限制

文章图片

文章图片

文章图片

文章图片

文章图片

文章图片
今天和大家分享的是一个日式原木风的装修设计 , 房屋的业主是一对年轻的小夫妻 , 男主人之前也在日本留过学 , 两个人也都比较喜欢日式原木风的装修设计 , 所以在装修的时候就选择了清新的实木设计 , 其实在他们看来日式和中式实木的风格是相似的 , 只不过日式的设计可能会更清新一些更适合现在的年轻人 , 也是很多人喜欢的设计风格 。
日式原木风的新家装修 , 用设计弥补户型的缺陷 , 打破结构的限制
房屋户型:三室
房屋面积:100平方米
装修预算:30到50万元
所在城市:福州
设计师:赵一文
主要建材:铁件、银狐大理石、木作、海岛型木地板、壁布、壁纸、清玻璃、喷漆
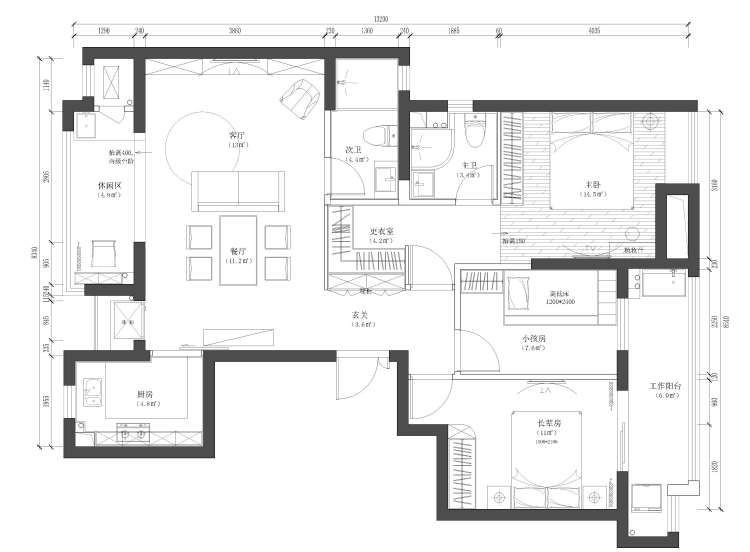
【户型图】
这个房屋的装修其实也不是那么的顺利 , 设计方案之前设计师只是拿到了房屋的结构图 , 后来到房屋所在地观察之后才发现和结构图有一些出入 , 所以很多设计并不是很合理 , 没办法设计师只能根据实际的户型对原本的方案作出了一些调整 , 对户型当中不合理的地方也做出了一些调整和改动 , 用设计来弥补户型的缺陷 , 打破结构的限制 , 刻画日式原木风的家居空间 。
【玄关】
设计重点:上下镂空的灯带设计
入户的玄关鞋柜设计了上下镂空的灯带设计 , 鞋柜选择了隐藏的把手设计 , 温暖的灯光也让人回家之后感觉到一丝温暖 , 玄关的地面和客厅地面选择了不同风格的设计 , 用大理石和实木地板作为分隔 , 将两个区域形成了一种分隔 。
【客厅】
设计重点:去除电视机
客厅的位置去除了传统的电视机 , 选择保持了简单的大白墙 , 平时在家的时候可以直接用小的投影仪投屏到墙壁上看电视 , 也十分的方便 , 顶部的灯带也起到了照明的作用 。
客厅选择了浅灰色的布艺沙发搭配实木的设计 , 客厅右侧和家里的阳台是直接打通的设计 , 靠近阳台的位置设计了一个榻榻米 , 这个榻榻米的区域是男主人平时的个人领域 , 平时在家的时候就可以坐在这里看一看风景 。
客厅去除了很多不必要的设计 , 选择原木和白色的结合 , 客厅唯一的亮色就是客厅带有花纹的地毯了 , 简约的设计也让人感觉心情舒畅了很多 。
【餐厅】
设计重点:顶部射灯
餐厅选择了实木的桌椅直接放置在沙发的后面 , 平时家里就只要两个人吃饭所以就不会用到餐厅的卡座 , 餐厅和客厅相连的设计 , 让视觉也更加的通畅 。
【书房】
设计重点:设计活动暗门
书房是借助了阳台的位置 , 书柜的一侧是一个可以移动的暗门 , 里面是一个小型的收纳间 , 可以用来放置一些杂物 , 也是为了充分利用这里的面积 。
特别声明:本站内容均来自网友提供或互联网,仅供参考,请勿用于商业和其他非法用途。如果侵犯了您的权益请与我们联系,我们将在24小时内删除。
