|四合院设计公司

文章图片
【|四合院设计公司】
文章图片

文章图片

在我很小的时候 , 我在电视上看到了很多美丽的四合院 , 精致的雕刻 , 回廊 , 屏风 , 庭院等等 。 非常漂亮 。 现在我对四合院别墅有着深深的向往 。 如果我想建一座别墅 , 我肯定会选择四合院别墅 。
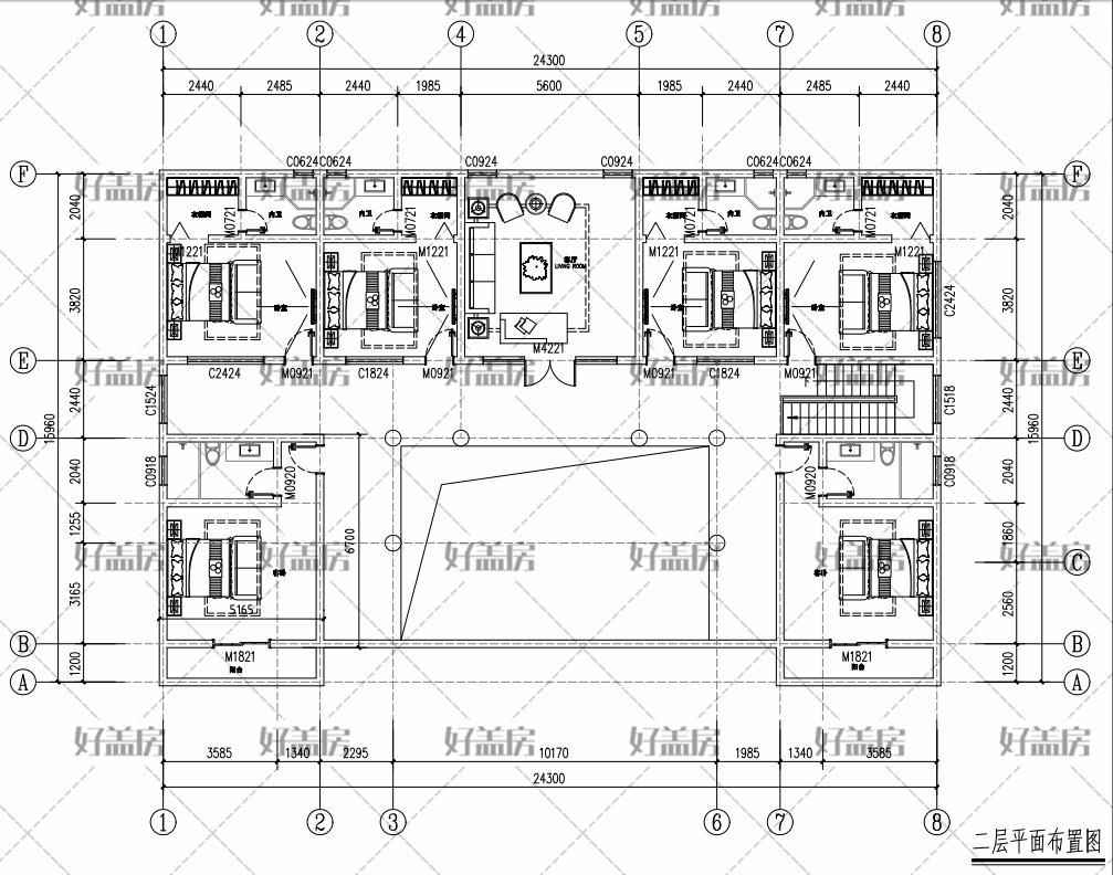
今天 , 我想和大家分享这款流行的两层四合院别墅 。
特别声明:本站内容均来自网友提供或互联网,仅供参考,请勿用于商业和其他非法用途。如果侵犯了您的权益请与我们联系,我们将在24小时内删除。
