|买了房就这样装,一房能顶三房,漂亮又实用!

文章图片

文章图片

文章图片

文章图片

文章图片

文章图片

面积:117㎡
空间:三居
风格:北欧
现在北欧风格挺流行的 , 很多年轻人都喜欢这种装修风格 , 北欧风格清新舒适 , 洁白明亮 , 简单舒适 , 优点挺多的 , 这套新房117平隔了三间房 , 其有一间小房间装的是榻榻米 , 具有储物功能、卧室功能和书房功能 , 一房能顶三房 , 漂亮又实用 , 以后买了房就这样装吧 。
客餐厅是打通的 , 因为是一面采光 , 这样光线就可以通过客厅照进餐厅 , 让整体空间感变得明亮开阔
客厅摆放着一套黄色沙发 , 色彩明亮 , 提升了整个空间的活跃度 , 白色的圆形小茶几 , 小而精致 , 地板上铺了一块几何图形的地毯 , 尽显现代时尚感 。
客厅旁边装有一个小吧台 , 文艺浪漫 , 又能当隔断用 , 还能区分两个不同的空间 。
吧台后方是个储物柜 , 采用白色加原木色搭配 , 色调简洁清新 , 自然舒适 , 存储空间又多很实用 。
客厅墙面用多幅大小不一的挂画装饰 , 增添了温馨感 , 暖色调的装饰让空间感充满着活力 。
阳台上摆放着椅子和椅子 , 用于休闲、观景 , 旁边还种着植物 , 用来装饰空间 , 休闲式阳台用 , 让生活变得更有情调感 。
餐厅的布置很简单 , 一张原木餐桌清新实用 , 墙面用一幅挂画装饰 , 温馨雅典 。
厨房安装的是白色门板 , 线条层次有立体感 , 白色让空间更显明亮 , 结合地板上的花砖 , 清新文艺更时尚 。
主卧色彩搭配简约温馨 , 浅色空间搭配深色家具 , 打造出简单舒适的睡眠空间 , 窗台下方被改装成储物柜 , 用于增加收纳空间 。
次卧白色的家具搭配清新的被单 , 营造出清松舒适的环境 , 让人感到放松 , 窗台安装了弧形书桌 , 便于学习用 , 并加上黄色作点缀 , 提升活力气息 。
书房装的是榻榻米 , 有收纳、睡觉、书桌等功能 , 小房间多功能更实用 。
【|买了房就这样装,一房能顶三房,漂亮又实用!】卫生间虽然面积不大 , 但五脏俱全 , 该有的都有装 , 其中隔断用的是浴帘 , 便于干湿分离 。
▲ 主卫灰色搭配局部花砖点缀 , 蓝灰色成品台盆柜与整体风格完美相搭 , 小空间蹲坑淋浴空间功能重叠 。
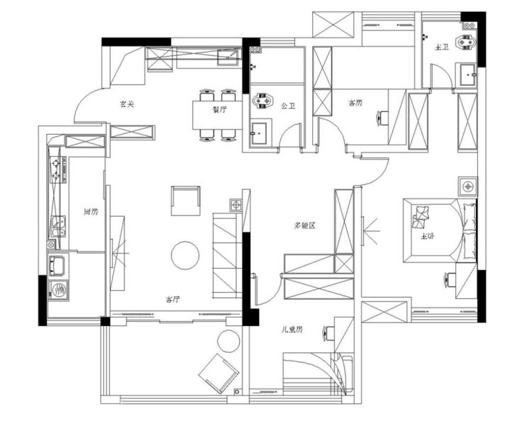
平面图:
齐家小灵儿提供更多装修资讯 , 喜欢我的朋友记得收藏和关注哦!
(素材来源于网络 , 无法核实真实出处 , 如有侵权 , 请直接联系齐家小编删除 。 谢谢!)
特别声明:本站内容均来自网友提供或互联网,仅供参考,请勿用于商业和其他非法用途。如果侵犯了您的权益请与我们联系,我们将在24小时内删除。
