|农村两层别墅设计图纸及效果图大全

文章图片

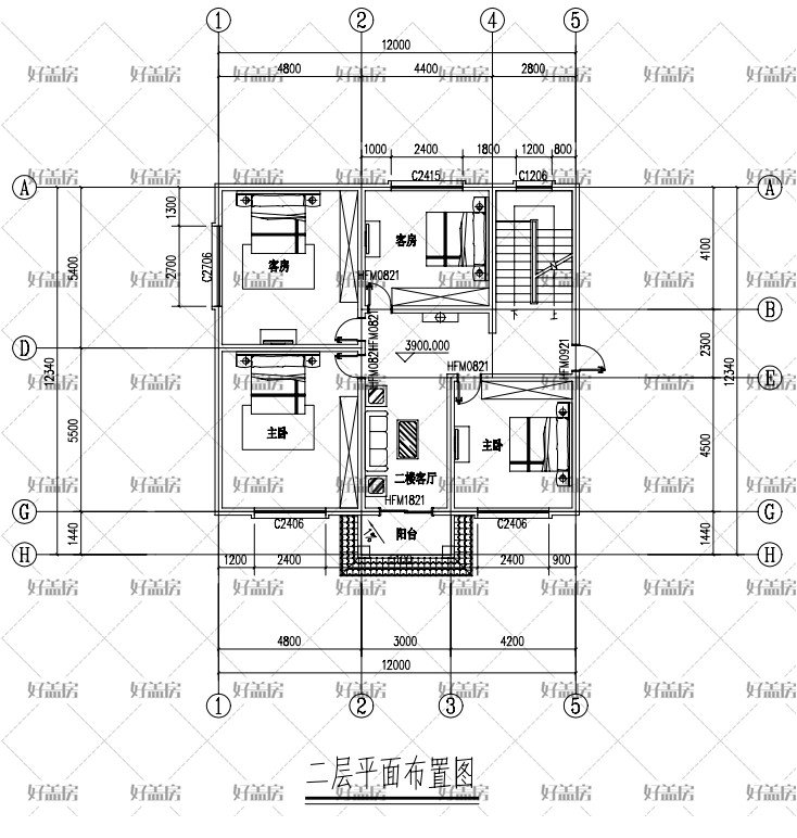
文章图片

文章图片

在过去 , 我们都追求建造更多房间的房子 , 不管我们住不住的上 。 简而言之 , 楼层的数量应该高 , 应该有更多的房间 。近年来 , 我们变得越来越理性 。 你甚至可以发现 , 即使一层或两层的房子设计得很好 , 独自居住也是非常惬意和舒适的 。 您这么认为吗?
建筑层数:2层
【|农村两层别墅设计图纸及效果图大全】结构形式:砖混结构
开间尺寸:12米
进深尺寸:11米
占地面积:133㎡
建筑面积:272㎡
建筑风格:简欧风格
户型布局:7室2厅
主体造价:20~35万左右(因地域差异略有变动)
特别声明:本站内容均来自网友提供或互联网,仅供参考,请勿用于商业和其他非法用途。如果侵犯了您的权益请与我们联系,我们将在24小时内删除。
