|300平现代简约复式,楼梯改造方案绝了

文章图片

文章图片

文章图片

文章图片

文章图片

文章图片

文章图片

文章图片

文章图片

文章图片

文章图片

文章图片
- Location - | Kunming 金江小区
-Area - | 面积300㎡
- Chief Designer - | 设计师 唐姚
- Style - | 风格 现代简约
-Project manager- | 项目经理 梁大国
业主需求:
三代人同住 , 需要充足的储物空间和衣帽间;要开阔的空间 , 需要保留中空;二楼也需要一个公共空间 , 这样不会打扰到老人;风格上要干净、自然、简约 。
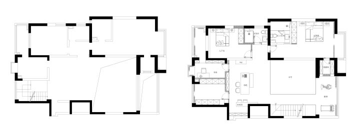
户型分析:
?改变楼梯位置 , 成全了客厅和厨房两个空间的功能完整;
?改造后的厨房分出中厨和西厨 , 还增加了岛台 , 使用更方便;
?最大的房间作为老人房 , 宽敞的空间更加舒适 , 分床布置实现了老人的各自独立 , 又相互依赖的需求 。
?做了部分浇筑 , 获得更理想的楼梯空间和健身区域 , 也增加了储物空间;
?居住人口简单 , 只保留三个卧室 。
客厅
利用原建筑的层高条件 , 保留挑高的中空 , 客厅空间视野开阔舒适 , 黑白灰为主色调 , 局部搭配温暖木质色彩 。
【|300平现代简约复式,楼梯改造方案绝了】
无主灯的客厅 , 主要通过装饰灯光和射灯达到照明效果 , 深灰的沙发 , 黑白的现代装饰画 , 空间色彩度降到最低 , 暖暖的灯光和绿植的点缀 , 温柔高级的空间氛围静静流淌 。
特别声明:本站内容均来自网友提供或互联网,仅供参考,请勿用于商业和其他非法用途。如果侵犯了您的权益请与我们联系,我们将在24小时内删除。
