
文章图片

文章图片

文章图片

文章图片

文章图片
28平方米的居住面积 , 可能都不如大户型的客厅大 , 但是这么小的一块区域却被装修成了小夫妻的别致空间 , 不仅典雅有质感 , 还十分的洁净温馨 。
今天我们即将看到的这套案例 , 来自一对年轻的小夫妻 , 小夫妻说 , 他们与其简装修一个中户型 , 不如精装一个小户型 , 反正资金有限 , 不如就个性一点 。 最后小夫妻确定了这套28平方米的小房子 , 对于小编的感觉 , 确实狭小了一点 , 但是小夫妻很喜欢 , 这就足够了 。
小户型装修也有很多讲究 , 接下来就请您随我一同看看吧 , 如果符合您的胃口 , 记得为小编转发关注哦 。
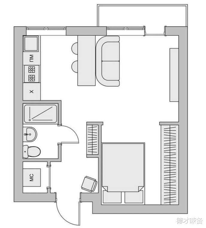
设计图如下:
从设计图中我们不难看出 , 整体的格局规规整整 , 并没有设计太多的隔断 , 这也是小户型装修的重点:减少隔断 。 因为隔断会压缩空间 , 导致心灵的压抑 , 空间的闭塞 。 小户型就要尽量避免这样的事情 , 所以半开放式的整体布局就在合适不过了 。
玄关
玄关区域的地板砖与客厅的地板砖进行了区分 , 白+黑的地砖配色质感十足 , 尤其是玄关镜和玄关凳 , 颇有欧式风格的设计 , 典雅高贵 , 给人十分舒适的感受 , 通顶式的大鞋柜足够一家人的存放使用了 。
【王大力|28㎡小房子竟如此高级?看看小夫妻的设计,真是长见识】客厅
从玄关走入客厅 , 客厅的主要位置由一个吧台和一个双人布艺沙发组成 , 回字形的开放式电视柜收纳能力很强 , 不仅能够放置杂物 , 还能摆放艺术摆件 , 为这个空间增添了许多的艺术气息 。
客厅的区域融合了很多的功能间 , 包括厨房和餐厅 , 分层化的处理 , 并没有感到空间的拥挤 , 反而增加了许多的层次感 , 尤其是利用颜色划分区域的方法 , 真的是太高级了 。
厨房
厨房在客厅的后侧 , 整体以黑色为主题 , 和白色的地砖形成了碰撞 , 空间层次感十足 , 质感得以体现 。 一字型的厨房空间不是很大 , 但是功能性还是很足的 , 瓷砖表面也便于清洁 , 两侧都贴合了墙壁 , 最大程度地利用了空间 。
餐厅
一个小小的吧台充当了餐厅的位置 , 吧台下侧的储物空间很大 , 能够放下许多的厨房杂物 , 而且还细心地放下了几个高脚杯 , 平时除了吃饭用之外 , 小两口也可以坐在这里喝喝小酒 , 看看电视 , 生活真是轻松惬意 。
别致的小酒杯典雅而尊贵 , 在灯光的映衬下 , 高端大气的格调得以体现 。
卧室
卧室的空间不是很大 , 但好在设计了隔断空间 , 卧室的隔断相对来说还是很有必要的 , 可以防止其他空间的灰尘跑到床铺上 , 也能够防止厨房的油烟气息影响睡眠 。
卧室的隔断也是比较轻的 , 通过一个小小的窗帘和客厅划分区域 , 右侧是一个卧室柜 , 不仅起到了隔断的作用 , 同时增大了储物空间 。 卧室柜上还增加了许多处的小镜子 , 将卧室的空间进行了拉伸 。
特别声明:本站内容均来自网友提供或互联网,仅供参考,请勿用于商业和其他非法用途。如果侵犯了您的权益请与我们联系,我们将在24小时内删除。
