老年小妙招|这才是“神设计”!24㎡,满足三口人居住,还有超多收纳,佩服

文章图片

文章图片

文章图片

文章图片

文章图片

文章图片

文章图片

文章图片

24㎡的空间能干什么?在别人家 , 可能就是一个客厅的面积 , 或者是一个大卧室的面积 。 可在本案屋主家 , 却是整个新房的空间面积 。 虽说这是为了孩子上学买的学区房 , 但却要满足一家三口的日常起居以及孩子的学习 。 因此 , 如何来合理地布局设计 , 如何赋予空间更多种功能 , 也是要仔细思考的 。
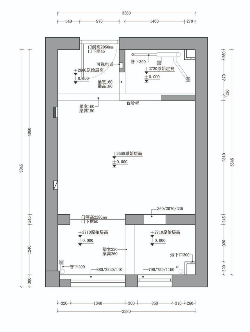
平面结构图
本案位于南京 , 原户型其实是一套单身公寓 , 面积只有24㎡ , 层高为2.66m 。 虽说空间面积很有限 , 但屋主的要求却一点都不少 。 不仅要满足正常家庭的日常起居需求 , 考虑到这套房至少需要居住6年 , 所以还要充足的收纳空间 。 因此 , 在空间设计中 , 为了最大化提高实用性 , 就采用了经典的模块式设计手法 。
平面方案图
考虑到原有的空间已经做了区域规划 , 且只有卫生间的墙体可以改动 。 所以空间布局这块 , 基本上保留了原有的格局 , 并采用了“减法”的方式 , 来提高空间的利用率 。 比如舍弃常规的客餐厅功能 , 并通过抽拉式柜体 , 来解决日常用餐需求 。 再比如舍弃常规的成品家具 , 通过柜子来代替等等 。
收纳设计示意图
入户
一进门就在右手边设计了一整面墙的柜子 。 虽说做法比较常见 , 但对于小户型来说 , 却也是最实用的体现 。 入户鞋柜深度做到60公分 , 既可以提高鞋子的收纳量 , 也可以用来收纳其它衣物 , 从而实现灵活运用 。
卫生间
进门左手边就是卫生间 , 在空间采光一般的情况下 , 给墙面贴上白色的瓷砖 , 不仅可以起到补光的作用 , 也能起到拓展空间的视觉表现 。
充分利用包下水管的空间 , 设计出三个壁龛 , 不管用来收纳洗浴用品 , 还是用来收纳拖把 , 都十分的方便 。 不过考虑到空间比较紧凑 , 台盆功能则放弃了 。
公共区
入户第一视角 , 虽说空间面积比较小 , 但由于入户门正好对着阳台 , 所以整个公共区的采光还是相当不错的 , 并且还拥有了一定的视觉延伸性 。
2.6长的书桌与鞋柜相连 , 在保证整体性的前提下 , 也延伸出了多种功能性 。 比如孩子学习、屋主办公等 。 同时 , 吊柜底部暗藏的灯带 , 也保证了照明功能 。
拉开书桌抽屉 , 就是一张隐藏的餐桌 , 长度在1米左右 , 完全能满足一家三口的日常用餐需求 , 且丝毫不占用空间 。 而餐桌上面的吊灯配置 , 在平时不需要辅助照明的情况下 , 则可以收进吊柜顶部的隔层中 , 完全不会影响到空间体验 。
特别声明:本站内容均来自网友提供或互联网,仅供参考,请勿用于商业和其他非法用途。如果侵犯了您的权益请与我们联系,我们将在24小时内删除。
