预算有限,又想要装得尽量高级而不俗气,可以参考下他家的装修

文章图片

文章图片

文章图片

文章图片

文章图片

文章图片

这年头 , 有钱的人其实挺多的 , 想要把家里打造的高端大气上档次 , 只要你舍得花钱 , 请最好的设计师、也不计较装修预算 , 你完全可以当甩手掌柜 , 直接交给人家装修公司做 , 自己该吃吃、该玩玩 , 什么都不用操心 。 但对于装修预算并没那么充足的家庭来说 , 想要将房子装修得尽量高级而不俗气 , 还能有那么一点点个性的话 , 就没那么容易了 。 本期就为大家带来一套 , 我个人感觉装修得还挺不错的装修案例 , 分享给大家参考一下!
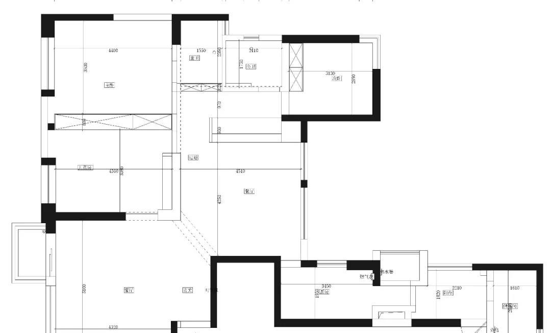
这套房子的面积约150平米 , 房龄比较老 , 户型也略奇葩 , 厨房外面还拖着一条长长的“尾巴” , 好在并不影响室内的主体格局 。
从装修前后的对比图来看 , 室内格局改动不大 , 只是在局部区域做了些小幅的调整 , 好让空间得到更合理的利用 。
一起来看看 , 他们家是怎么通过有限的预算 , 达到更好的装修效果的吧 。
这是客餐厅的全景效果 。 大门右侧那个杵在客餐厅中间的障碍墙 , 被设计成了高级灰的线框墙 , 使原本极为碍眼的一面墙 , 变得顺眼多了 。 从客厅这个视角看过去 , 也显得没那么突兀了 , 再搭配一个同色系的鞋柜 , 既好看 , 又实用 。
客厅这边虽然采光很好 , 但整个空间并算不得很通透 , 所以室内的装饰陈设 , 都以简约为主 , 像墙面、顶面的造型都接近于扁平型的 , 照明也采用了无主灯的设计 , 这样干净利落的设计方式 , 能让空间看起来更通透敞亮一些 。
客厅的电视背景墙是用灰色拉丝玻璃和岩板拼起来的 , 上面的白色岩板采用的是蒙娜丽莎的乔仕白款 , 蓝白的底色上夹着不规则的黑白条纹 , 显得清新、纯净 , 仿佛冰雪覆盖下的湖面 , 带给人一种安静与清凉感 。 而下面的黑色岩板则是蒙娜丽莎的黑罗兰款 , 拥有干净明了的简约气质 , 能与各种风格相搭 , 而它本身的色彩也非常显大气 。 总体来看 , 这个由黑白灰组合而成的电视背景墙 , 极大地提升了整个空间的格调与质感 。
沙发没有直接靠墙摆放 , 而是在后方定制了一排顶天立地的储物柜 , 然后直接以这面储物柜作为沙发背景墙的造型 , 如此一来 , 既节约了空间 , 又增加了实用性 。 当然 , 这面柜子 , 能作为背景墙 , 也是因为它采用了一些特别的设计 , 比如柜门上无把门 , 边缘处还用装饰条做了修饰 , 使柜子的立面平整光洁 , 视觉上也很漂亮 。
客厅的家具 , 则是以皮质、岩板材质等为主 , 再加上时尚简约的装饰陈设 , 整个客厅区看起来还蛮显高级的 。
餐厅左侧的背景墙, 延续了入户区的背景造型 , 而另一侧 , 则直接以书房的黑玻移门来代替 , 既打造出了别具一格的感觉 , 又增加了实用性 , 与黑白色的餐桌和岛台搭配在一起 , 将餐厅打造得格外地高级大气 。
特别声明:本站内容均来自网友提供或互联网,仅供参考,请勿用于商业和其他非法用途。如果侵犯了您的权益请与我们联系,我们将在24小时内删除。
