与其把阳台纳入客厅,不如将阳台扩大,入住后,才知道有多爽

文章图片

文章图片

文章图片

文章图片

文章图片

文章图片

文章图片

在新房设计中 , 说到阳台这块的处理 , 我们知道最常见的方式 , 都是将其纳入到客厅中 , 从而提高客厅的面积以及通透性 。 当然 , 也有朋友会将阳台单独保留 , 不过这种情况 , 一般都是基于阳台以生活功能为主的时候 , 才会这样来处理的 。
不过本期带来的这套案例 , 却在空间布局上打破了常规 , 也就是划分部分客厅的面积 , 来提高阳台的使用面积 。 虽说这个做法看起来有点不合理 , 但入住后 , 才会知道有多实用 , 真的太爽了 。
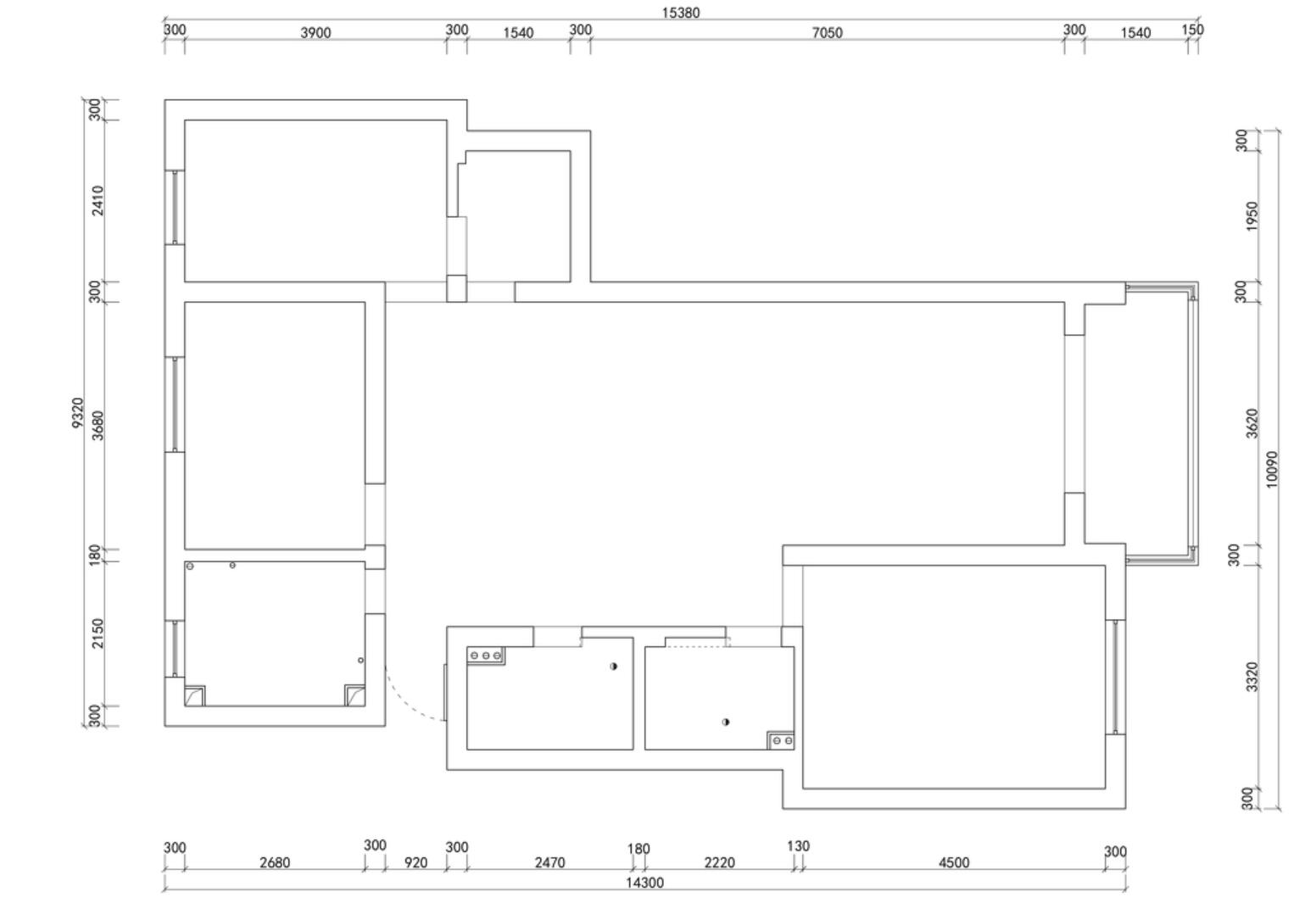
平面结构图
新房坐标上海 , 面积90㎡ , 三室两厅两卫的格局 , 屋主是一对新婚小夫妻 。 原户型算是比较优质了 , 结构工整 , 采光充裕 , 客餐厅面积很大等等 。 不过也正因为客餐厅面积大 , 所以如何才能让布局更合理 , 也是要重点考虑的 。
平面方案图
结合现有的空间情况 , 布局改造如下
1、入户门向外延伸 , 并借用卫生间的空间 , 为入户增加一个鞋柜 。
2、餐厅划出部分空间给主卧 , 以延伸出一个衣帽间 , 提高家里的收纳能力 。
3、南阳台向客厅扩大 , 并做地面抬高处理 , 打造出一个休闲区 。
玄关
原入户并没有一个合理的鞋柜位置 , 不过考虑到入户门可以向外做平移处理 , 所以就借用卫生间的墙体空间 , 设计了一个嵌入式矮柜 , 并增加了壁龛 。 这样一来 , 既解决了日常的收纳需求 , 在壁龛内摆下一瓶香薰后 , 也让生活更有空间仪式感了 。
入户第一视角 , 整体以温柔的大地色定位 , 为空间奠定了温暖的基调 。 藤编材质的长凳 , 再搭配上绿植 , 在灯光的衬托下 , 折射出了独特的光影效果 , 从而让视觉更加丰富 。
餐厅
通过玄关就是餐厅 , 由于使用面积够大 , 在靠近厨房的位置设计一个中岛台 , 并在侧面配置西厨功能 。 既缩短了生活动线 , 也缓解了厨房的空间压力 。 当然 , 最重要的还是丰富了餐厅的功能性 。
正因为餐厅面积够大 , 所以在配置餐桌时 , 并没有贴着中岛摆放 , 这样一来可以让空间表现得更加饱满 , 二来让生活动线更加流畅灵动 。 而藤编与原木材质的结合 , 也与整个空间基调完美融合在了一起 。
客厅
客厅继续统一了色调 , 顶部做无主灯处理 , 可以让空间看起来更加的简约、干净 。 电视背景墙直接留白 , 并在顶部暗藏投影幕布 , 提供了极致的视觉体验 。
不过整个空间重点设计 , 还是在阳台的处理上 , 看似是将阳台纳进了客厅 , 实际上却是客厅分配了部分面积给阳台 。 这样既保留了应有的空间通透性 , 也提高了阳台的使用舒适性 。
特别声明:本站内容均来自网友提供或互联网,仅供参考,请勿用于商业和其他非法用途。如果侵犯了您的权益请与我们联系,我们将在24小时内删除。
