唐延九郡现代简约案例赏析
----唐延九郡现代简约案例赏析//----
----唐延九郡现代简约案例赏析//----
----唐延九郡现代简约案例赏析//----
----唐延九郡现代简约案例赏析//----
"multi_version":false
【客户诉求】本案装修案例为四室两厅四卫 , 三口之家 , 一个小孩 , 男女主人爱好广泛 , 爱交朋友 , 女主人喜欢烹饪 , 男主人从事金融行业 , 对书房的要求高 , 同时对孩子的成长和培养尤为在乎 。
【风格赏析】客厅以暖色调为主色调 , 简约的深色系地毯作以衬托 , 素雅的茶白色作为墙面背景色 , 家具带有金属质感的香槟金 , 简洁而不失时尚 , 蓝灰色给餐厅营造出一种奢华和典雅的感觉 , 卧室以浅色系为主 , 搭配灰+白的色系窗帘 , 是整个空间不仅有了层次感 , 更使整个空间营造出舒适、惬意的感觉 。
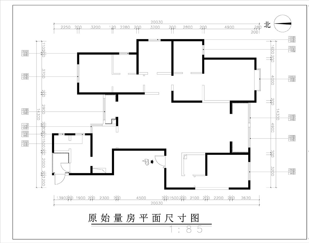
【户型解析】
原始户型图:南北通透 , 区域划分相对明确 , 客餐厅空间有错位 。
平面布置图:非承重墙体改动 , 加建墙体使空间规整 , 提高舒适度与利用率 。
【效果展示】
客厅:客厅是日常生活中使用最频繁的空间是集会客、聚会、娱乐等多种功能于一体的地方以暖色调为主色调 , 以浅色系作为基础色 , 简约的深色系地毯作以衬托 , 素雅的大色块作为墙面背景色 , 设计能够最大程度为家人提供温暖和温馨的生活情调 。
餐厅:女主人喜好烹饪 , 与餐厅的相连的西餐区 , 为此提供了足够的操作空间 。 此外 , 设计师巧妙的利用墙面 , 将餐厅的展示、储藏空间融为一体 , 不仅能适当减轻厨房的收纳压力 , 还能当做备餐区 , 提高了空间的利用率 。
卧室:主卧以浅色系为主 , 搭配灰+白的色系窗帘 , 是整个空间不仅有了层次感 , 更使整个空间营造出舒适、惬意的感觉 。 素雅的色调奠定了空间优雅的格调 , 橙色吊灯运用的十分得体 , 点缀了空间光泽 , 如同阳关下的花朵 , 巧妙地增加了整个空间的灵动 。
书房:书房设计采用简约港式风 , 书房给人一种宁静平静的感觉 。 它让人摒弃了现代的浮躁之气带人进入一种安静的读书氛围由于书房的特殊功能它需要一种较为严肃的气氛 。 但书房同时又是家庭环境的一部分它要与其他居室融为一体透露出浓浓的生活气息 。
特别声明:本站内容均来自网友提供或互联网,仅供参考,请勿用于商业和其他非法用途。如果侵犯了您的权益请与我们联系,我们将在24小时内删除。
