展示空间·意大利IMOLA陶瓷项目
----展示空间·意大利IMOLA陶瓷项目//----
----展示空间·意大利IMOLA陶瓷项目//----
----展示空间·意大利IMOLA陶瓷项目//----
----展示空间·意大利IMOLA陶瓷项目//----
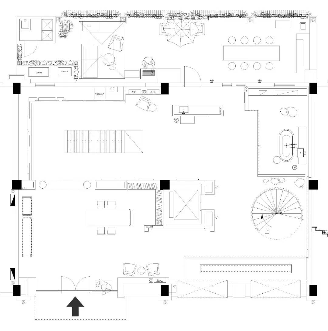
在营造一间专业意大利陶瓷展陈空间设计伊始 , 基地属于一栋原属街边店面 , 充分了解有关销售动作的需求 , 设计师将三层空间的逻辑梳理出更为适用之流程 , 将首层作为项目的调性奠定与品牌传臻 , 将电力升降梯作为上升垂直空间的前端交通 , 空间维度发乎雕塑性来推演机能与美感 , 带来更为周全与尽美的体验式参观之旅…
\n\n
\n
\n
鉴于项目的商业需求 , 藉以本源品牌之文脉作为开宗明义之宗旨 。 传承与提升延伸出内心触感 。 时光难以捉摸 , 却真切发生着 , 若以齿轮作为时间运行的参照 , 轮齿推进牵连相应结果 , 可以预料 , 景物虽不可避免因时光累积而渐生老态 , 但却也因此相生韵致 , 营造值得细味的故事内涵 。 在本案 , 设计师转动时空罗盘 , 思考空间 , 时间的运动性 , 并且展现一个大胆的想象空间 。
\n \n \n
正对入口 , 映入眼帘的是具有百余年发展史的意大利IMOLA瓷砖做序列处理作为接待台的背景 , 以及罗马柱的设计更是凸显这一主题 。 设计师凭借着对工作的执着 , 对美的追求和不断的创新意识 , 缔造出“IMOLA”这一特色的展陈空间 , 以及进行历史的品牌文化的阐述 。 “享受美好人居 , 享受幸福生活”是IMOLA先进设计理念与制造工艺的代表 , 随着体验式参观之旅的行进 , 进门右转 , 你将看到将近十米高的条幅贯穿IMOLA整个三层 , 将IMOLA的字母进行夸大的手法 , 犹如一尊雕塑 , 屹立在以纯净洁白的IMOAL瓷砖做背景的展厅中 , 打通三层空间 , 顶面与地面相呼应 。
\n\n \n
唯美至极的流体旋转楼梯作为回流美学的交通核心 , 基于人们对于线性的理解 , 横线为平衡 , 竖线为挺拔 , 斜线为动态 , 弧线为柔和 , 楼梯自身独特的斜体线形和弧线的姿态结合起来 , 集中体现在圆弧旋转楼梯之中 , 会使静态的空间变成活泼的动态环境 。
\n\n \n
空间设计师充分了解空间的流线 , 将二楼主要设置为办公区和洽谈区 , 整体偏暗调的二层空间 , 悬挂着壁炉点亮着空间细节 , 整个设计静谧柔和 , 设计师更是注重细节的处理 , 从字体的选择到整个墙面瓷砖的铺设 , 无不体现设计师的用心 。
\n\n \n
作为主要的瓷砖展厅的展示空间 , 三层整个空间设计中 , 设计师主要采用集装箱container的理念 , 意指原装进口 , 漂洋过海之意 。 通过强烈的黑白对比 , 更是在造型上采用非常规造型 , 每一隔间以不同系列的瓷砖为主题 , 进行空间设计 , 同时呼应主题的集装箱的理念更是无处不在 , 设计师充分理解IMOLA瓷砖的审美品位 , 创造精致 , 优雅 , 艺术性的展厅空间 。 满足现代人汲汲营营的脚步中所追求的精神与物质的平衡 , 艺术与历史共存 , 静谧间有如永恒 。
特别声明:本站内容均来自网友提供或互联网,仅供参考,请勿用于商业和其他非法用途。如果侵犯了您的权益请与我们联系,我们将在24小时内删除。
