晒晒我家农村别墅16X10米, 造价25万, 带小院!
----晒晒我家农村别墅16X10米 造价25万 带小院!//----
----晒晒我家农村别墅16X10米 造价25万 带小院!//----
“房子”似乎自古以来就是一个恒古不变的话题 , 农村建房子、修房子;求学时住宿舍、住公寓;刚刚开始在城里工作租房子;在城里安家买房子......
随着房价的飙升 , 很多本想在城里买房安家的人 , 望而却步 , 很多明知的人选择了回到自己的家乡建房子 , 农村现在生活好了 , 眼光也好了 , 村里建的房子别墅一样美丽 , 室内布局还可以根据自己的需求来布置 , 最主要的是 , 造价经济 , 物美价廉 。
房子为二层 , 旁边还有一个封闭式车库 。 房子前面有一个小院 , 除了一块休闲平地外 , 就是一个小花园了 , 花园里有青草和小花 , 还有两棵树 , 田园清爽 , 又充满了生机 。
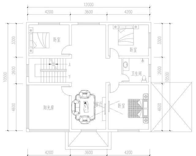
平面布局图:
房子开间16米 , 进深10.5米 , 占地面积150.82平方米 , 建筑面积282.28平方米 , 砖混结构建造 , 毛坯房造价25万 。
房子的一层有客厅、厨房、餐厅、车库和两个卧室 , 二层中间是一个客厅 , 两侧有3个卧室和1个阳光房 。 两层共5个卧室 , 能容得下5到10口人 。
特别声明:本站内容均来自网友提供或互联网,仅供参考,请勿用于商业和其他非法用途。如果侵犯了您的权益请与我们联系,我们将在24小时内删除。
