为了孩子,她搬进70㎡老破小,改造后,变身无敌江景小屋

文章图片

文章图片

文章图片

文章图片

文章图片

文章图片

文章图片

文章图片

文章图片

文章图片

文章图片

文章图片

文章图片

文章图片

文章图片
【为了孩子,她搬进70㎡老破小,改造后,变身无敌江景小屋】

文章图片
一屋、两人、三餐、四季 , 这应该是所有人都向往的生活方式了吧 。 但在有了孩子之后 , 也只能回归到家庭责任中来 。 而这看似是一种无奈的选择 , 但从另一个角度来看 , 又何尝不是一种幸福呢?
本期带来的这套案例 , 就是这种情况 。 屋主“面面”本是一位摄影旅游博主 , 曾经也满世界的旅行拍照 。 不过为了孩子上学 , 还是回归到了家庭生活中 , 并且也从之前的200㎡大宅 , 搬进了这套70㎡的老破小中 。 虽说居住面积小了很多 , 但通过改造后 , 却也变身成了无敌江景小屋 , 非常让人羡慕 。
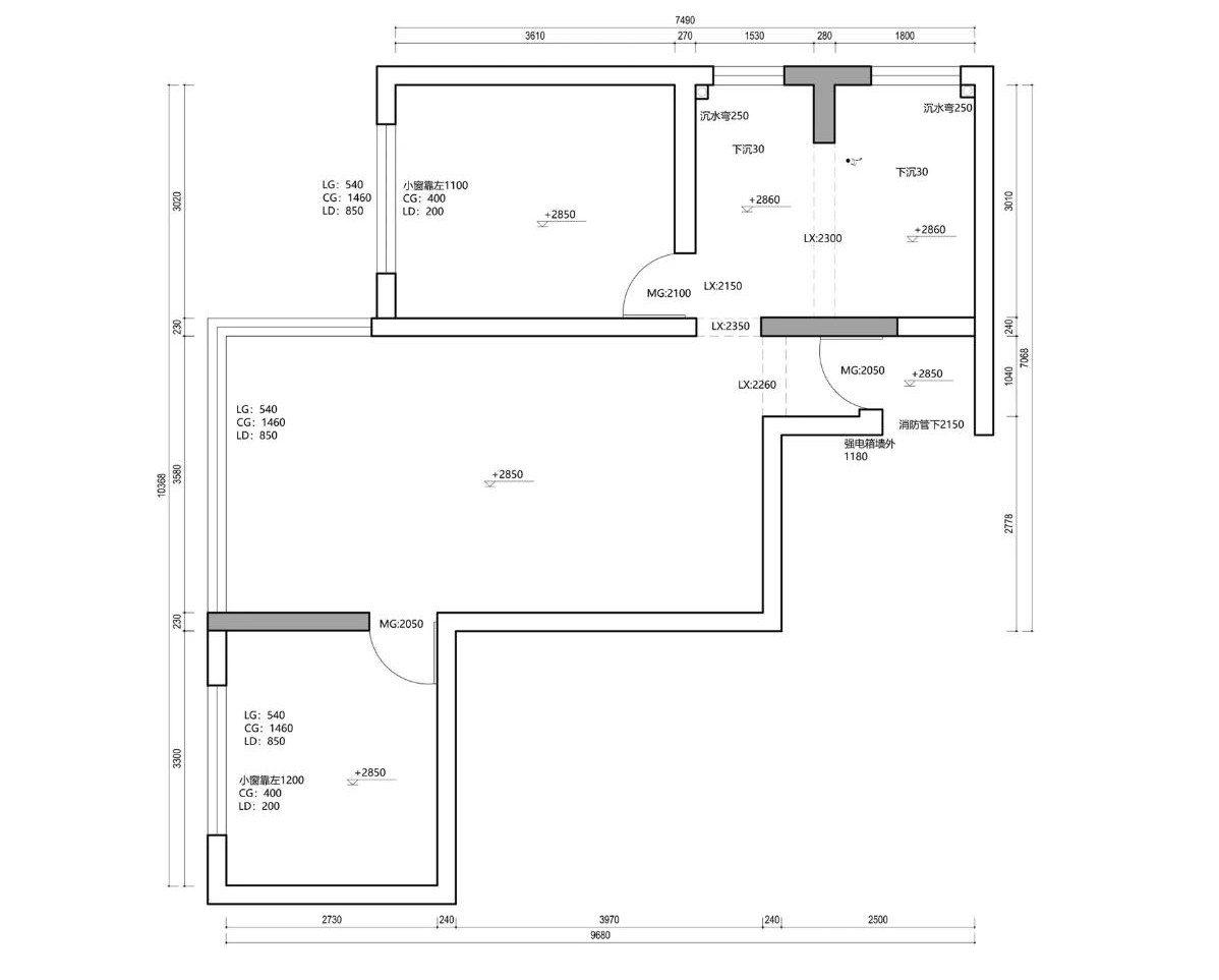
平面结构图
本案坐标重庆 , 面积70㎡ , 虽说是一套老破小 , 但无论是户型结构 , 还是地理位置都相当不错 , 并且距离孩子学校仅10分钟的步行路程 。 不过最大的优势 , 还是临江、有电梯 , 一改老破小固有的印象 。
对于空间需求这块 , 屋主考虑到会在这里至少居住9年 , 也有可能是12年 , 所以整体也全部做了拆除处理 , 以打造出一套高品质的居住场所 。
平面方案图
其实在空间布局这块 , 并没有对原有的墙体结构 , 进行比较大的调整 。 一是因为这是老房 , 二是原户型本身就比较方正 , 所以基本上都是以优化为主的 。
- 高三提高专注力 高三家长如何培养孩子专注力
- 专注力训练100图 怎样提高孩子专注力和集中注意力
- 海英博士儿童心理医生 海英博士培养孩子注意力
- 培养孩子专注力的5个表现 培养孩子专注力的五个妙招
- 孩子专注力差容易走神 小孩专注力不集中容易走神怎么办
- 产后要怎样减肥啊,生完孩子后的减肥方法帮忙介绍几点方法
- 坐不住的孩子感统训练 坐不住的孩子怎么训练注意力
- 专注力训练五个好方法 怎样培养孩子的专注力和注意力
- 3-6岁注意力不集中 小孩子注意力不集中如何训练
- 提高孩子注意力的十种方法 如何提高孩子的注意力方法
特别声明:本站内容均来自网友提供或互联网,仅供参考,请勿用于商业和其他非法用途。如果侵犯了您的权益请与我们联系,我们将在24小时内删除。
