比样板间还美是什么体验?套内89㎡,清新治愈

文章图片

文章图片

文章图片

文章图片

文章图片

文章图片

文章图片

文章图片
【比样板间还美是什么体验?套内89㎡,清新治愈】一股充满疗愈生命力的绿于开阔布局 , 抹茶绿融入简约北欧风格中 , 挥洒色彩 , 大玩跳色 , 巧用多样化的磁砖与色泽 , 为这30 余载、格局方正的家屋 , 换上新视野 , 陪伴四口之家展现焕然一新的轻盈神采 。
原始结构图原户型结构还是很不错的 , 方方正正的 。 套内面积89㎡ , 三房一厅一厨一卫的格局 , 不足之处在于卫生间偏小 , 居家动线略微不畅 , 客厅私密性较差 。
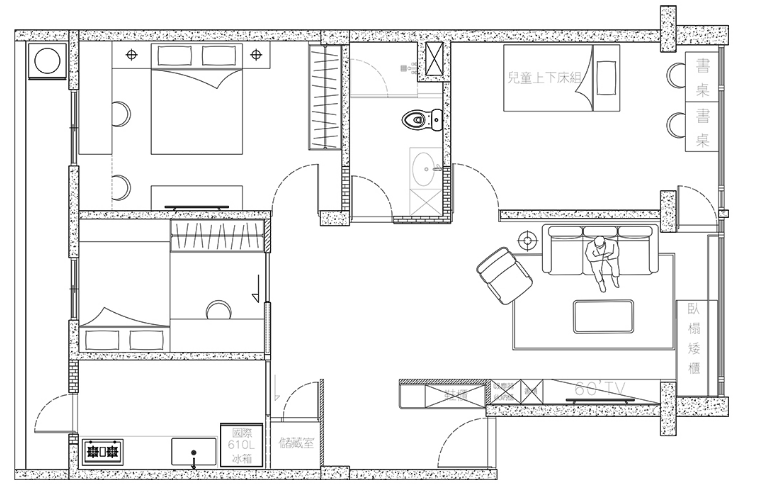
装修平面图针对户型存在的问题做出以下改造:
1、玄关拉出一道隔断柜 , 实现独立玄关空间 , 增加玄关收纳又提升了客厅的私密性;
2、压缩了次卧面积 , 让公共空间更加开阔 。 其次调整次卧门洞 , 让动线更合理流畅;
3、重新调整主卧、儿童房门洞位置 , 将原有过道划入卫生间 , 从而达到扩大面积的效果 。
玄关设计蕴含植物意象的长方花砖 , 以浓淡有致的深绿、浅绿错格排序 , 牵引内外 , 勾勒春来花开的大地风采 , 营造都市花园概念 , 型塑一幅古典雅致的迎宾端景 。
拉出一道新隔墙并结合顶天长柜 , 井然有序地收拢鞋履 。 轻浅木色柜门嵌入暗把手 , 平整视觉一致性 , 以纵长地形围塑出落尘区 , 隔绝外界尘嚣回归宁谧住所 。
客厅设计随着步伐前进 , 旋身右转 , 映入眼帘的是通透明朗的客厅 , 延续空间主要的抹茶绿色调 , 大面积铺叙整面墙 , 赋予耳目一新的舒心感受 , 弥漫柔和恬雅与静谧自在气氛 。
灰阶涂料 , 顺着横梁而下刷出泥朴质韵的电视墙 , 略带似流纹、似云朵的肌理 , 增添灵动感 , 沿着内凹的特性于上加设层板 , 于下设置一字形抽屉+平台 , 相依而序的系统柜同样镶入此凹面 , 提升居家的收纳量能 。
厨房设计撤除先前破旧不堪的污损厨具 , 褪去斑驳旧砖 , 铺上白净铁道砖 , 增设吊柜便于收拾厨房的生活杂物 , 下方以多功能层架+抽屉 , 打造新颖现代的便利厨区 。
主卧设计与公共空间一样同属绿色系打底 , 与清爽的白润透视感交织成睡卧领地 , 盎然绿植画龙点睛 , 以相似的语汇延伸贯穿整体风格 , 腾出不受限的空间让屋主可不必拘泥于特殊尺寸 , 自行采购需要的衣柜与书桌等配件 。
利落收边的线条 , 表现简单、不繁复的型态 , 广阔包容性百搭各式选材与软装;床头以圆润弧形修饰 , 削减锋锐之气 , 迎来柔雅视感 , 一旁观音莲再添一笔鲜活感 。
- 90㎡两室清爽,开放厨房放大空间
- 减肥期间晚上饥饿感强烈 减肥期间如何解决晚上的饥饿感
- 如何选择最佳的辟谷时间? 女人辟谷最佳时间
- 夫妻之间,一个积极向上,一个停滞不前,最后会怎样?
- 这段时间在减肥,今晚全家人要出去吃牛排,吃一顿牛排会长胖吗?
- 减肥期间中午主食吃米饭,还是馒头?
- 在农村院子里种了一堆薄荷,夏天怎么用比较好,能阴干熏蚊子吗?
- 减肥期间应该让生活规律吗? 适合月经期间的减肥运动
- 哪种减肥方法在短期内比较有效?
- 不是吃药的 苏州哪里减肥比较好的 苏州哪里有封闭式减肥
特别声明:本站内容均来自网友提供或互联网,仅供参考,请勿用于商业和其他非法用途。如果侵犯了您的权益请与我们联系,我们将在24小时内删除。
