广州70后丁克夫妻的家,装修审美太独特,忍不住拍照晒一晒

文章图片

文章图片

文章图片

文章图片

文章图片

文章图片

文章图片

文章图片

文章图片

文章图片

文章图片

文章图片
崇尚丁克主义的夫妻两个人现在一直没有孩子 , 虽然都已经年过40, 但是夫妻两个人的生活依旧过得非常自由和精彩 。
日常两个人都工作也比较忙碌 , 私下里的时间更多的是呆在家里 , 所以业主希望自己的家能够足够的轻松活泼悠闲 。
业主的这套房子位于江苏 , 房子的面积九十多平方 , 作为小户型来说面积还算宽敞 , 夫妻两个人的要求也比较简单 , 就是要尽可能地保证生活的舒适和轻松 。
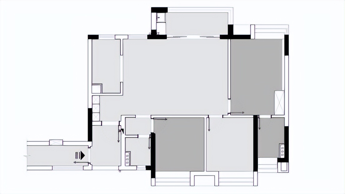
【户型图】
整个房屋的结构上没有太多的问题 , 设计师主要通过细节和软装出发 , 利用现代元素对空间进行升级 , 保证每一个功能区面积的宽敞和功能的完善 。
改造过后的空间整体的动线更加的流畅 , 同时尽可能地压低成本 , 利用少量的元素来烘托出空间的氛围和格调 。
【玄关】
设计重点:空间艺术美感十足
玄关是给人带来家的第一印象 , 所以空间需要凸显出风格和个性感 。
设计师将原本入户的花园进行了调整改造成了现在的入户玄关 , 同时利用艺术挂画来做装饰 , 点缀出玄关的纯粹和个性 。
进门口左手边还拥有大面积的玻璃窗 , 百叶窗帘让阳光若隐若现 , 形成了空间独特的美感 。
【客厅】
设计重点:空间采光更好
客厅改造过后保留了大面积的落地窗 , 这样可以让整个客厅的采光变得更加饱满 , 同时也可以打造出一个更加明亮的空间氛围 。
胡桃木色的收纳柜是现场定制的 , 不仅起到了强大的储物功能 , 也呼应了空间的整体风格 。
主卧的房门巧妙地设计在电视背景墙之中 , 隐形设计在视觉上不仅保证了空间的和谐和精致 , 也让整体更加的大气 。
【卫生间】
设计重点:暖色让空间更加温柔
卫生间内部选择了非常温柔的暖色调为主色 , 整个空间经过干湿分离过后更加的独立和干练 。
- 真实的纪晓岚最后竟被流放乌鲁木齐了吗?
- 原来微水泥这么简约高级,看完她家后,感觉自己的审美也提升不少
- 母乳喂养六个月,该如何科学预防产后大肚腩
- 使用减肥药的注意事项有哪些?
- 减肥产品吃后口渴对身体好吗
- excel保留整数-excel保留整数后的和相加也保留整数
- 产后如何瘦身,瘦腿,瘦肚子呢
- 90后女主晒出32㎡出租屋,因太会布置而走红,是被人羡慕的样子
- 整个身体顺时针转5圈眩晕后,再逆时针旋转5圈能不能抵消掉眩晕
- 运动后怎样才能减肥肉并且不长肌肉
特别声明:本站内容均来自网友提供或互联网,仅供参考,请勿用于商业和其他非法用途。如果侵犯了您的权益请与我们联系,我们将在24小时内删除。
