
文章图片

文章图片

文章图片

文章图片

文章图片

文章图片

文章图片

这套小户型的面积约为65平方米 , 户型虽然小 , 但是好在请了专业的设计师对房子的规划重新改造了一番 , 这样出来的效果颇有都说好看 。 而且本身的预算没有那么多 , 所以很多家具都是从二手店淘回来的 , 却是非常的实用 , 而且搭配起来还有种轻奢感 。
改造前
改造后
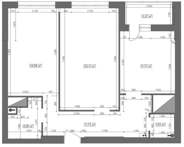
先来看看房子改造前后的平面设计图 , 这样你会更加了解这套房子究竟是改了哪里 。
空间不大 , 但是设计得来非常的紧凑 , 可以看到客厅设计非常的巧妙的利用了角落的空间 , 一张双人的沙发 , 一张长条形的茶几 , 一张浅蓝的单人沙发等设计在角落处 , 没有多余的空间可以放置电视柜 , 所以电视也是直接挂在墙上的 。
虽然整个客厅的空间不大 , 但是设计师善于利用角落的空间 , 比如窗边的角落还设计多一个办公区域 , 非常的实用又不会占据太多的空间 。
在办公桌的后方空间还是一个小型的阅读区 , 依靠在窗边的这两个小小功能区获取的自然光线十分充足 。
客厅的背后就是厨房的区域 , 整体感观上 , 客厅以及厨房是在同一个整体 , 虽然紧凑 , 但是功能可以共用之外 , 还是非常实用的 。
厨房的设计就非常有特色了 , 首先是吊柜的设计以原木色的设计为主 , 收纳空间很是强大哦 , 地柜的设计则是以湖绿色为主 , 收纳型也是很强大 , 台面则是以白色为主 , 防溅挡板的设计则是以花纹的瓷砖设计为主 , 整个厨房的色彩搭配起来一点都不会觉得繁杂 , 反而是自然舒适 。
能够注意到厨房的大型电器都是嵌入式的设计 , 餐厅则是被L型的整柜包围 , 就好像餐厅也是内嵌在厨房内部 。 厨房的吊顶也是非常有特色的设计 , 少有的设计物品才能看出其特色 。
业主比较追求的是生活的享受 , 所以卧室的空间不算小哦 , 还带有衣帽间的设计 。 就像业主说的生活是享受 , 而不是将就 , 公共区域的面积可以小 , 但是卧室不可以 。
床头的黑色条纹木板设计很有个性 , 对称的床头灯也是一大装饰 。 好看而且实用 。 给人一种高档气质的视觉感 。
房间的采光性能也很不错哦 , 大面积的玻璃窗能够提供很多的自然光线 , 还有带有的梳妆台设计 , 电视在床尾正对着的墙面上 。
知道衣帽间在哪吗?就是和墙面的颜色一样的隐藏门后方就是衣帽间的设计 。 而且在衣帽间的入门右侧还有一个收纳柜可以作为展示柜和收纳柜 , 功能还是不错的 。
- 1厨2卫的户型是做循环水好还是燃气热水器和厨宝结合的方式好?
- 大二学生,164cm,体重120斤,有哪些健康的减肥方式
- 现在市面上哪种减肥产品有效不反弹的呢
- 让你说出三件最具年代感的电子数码产品,你会说哪些为什么
- 为什么一些育儿大v觉得小儿推拿无用,不科学
- 二胎剖腹产宝妈,产后体重从160到110,是怎样的瘦身过程
- 拼多多上18W的iPhone快充头值得买吗
- 两周岁宝宝的身高体重标准是多少
- 怀孕时可喝咖啡、茶或含咖啡因的饮料吗?
- 女士们,有没有更年期体重下降的?
特别声明:本站内容均来自网友提供或互联网,仅供参考,请勿用于商业和其他非法用途。如果侵犯了您的权益请与我们联系,我们将在24小时内删除。
