宝山区51平一室户改造,开放式功能齐全!

文章图片

文章图片

文章图片

文章图片

文章图片

文章图片

文章图片

文章图片

文章图片

文章图片

文章图片

文章图片

说在前面
客户是一对小夫妻 , 也是我们的老客户了 , 本次装修也是应客户要求全部都是原班人马 。 这次希望设计师帮忙解决一室户的设计改造 , 把它转化为一个功能齐全、动线合理、布局清爽的两人的小世界 。 享受在婚期初的周末相聚放松时光 。
案例分析
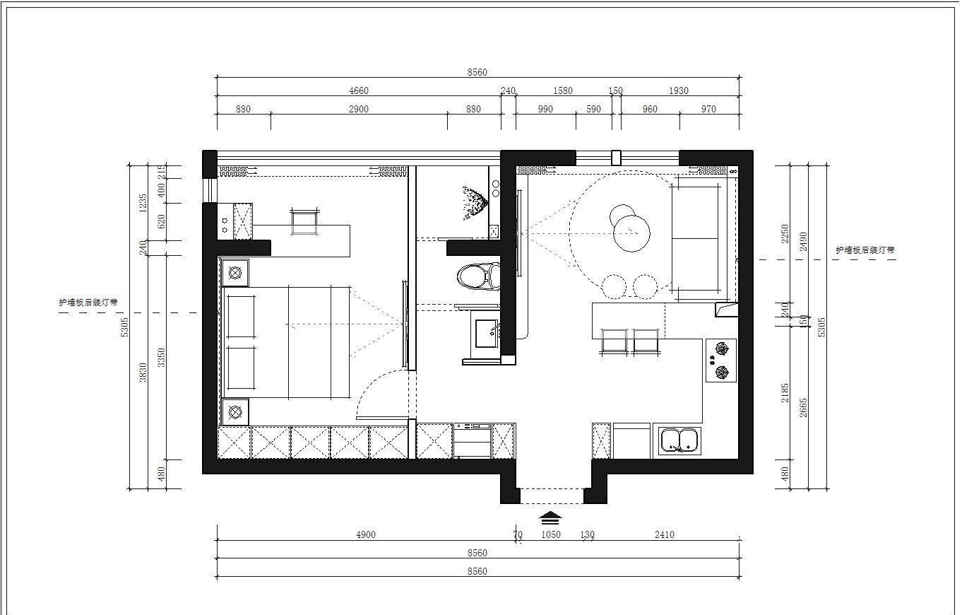
小高层的老房翻新 , 标准的框架结构 。 特点是原卧室的大阳台又是落地 , 前方无任何建筑遮挡 , 光线充足明亮 。 虽然中间户南北不通但是东西跨度大于南北跨度也不会显得阴暗 。 客户主要是夫妻二人享受周末时光 , 所以对格局需求相对较高 , 做饭频率不高但是希望有质感的用餐体验 。 风格上以简约现代风为主 , 辅以些许原木色增添温馨恬静的氛围 。 整体呈现安静舒适让人感觉惬意 。
问题分析及诉求
1 , 原始格局中 , 厨卫空间靠里 , 挤压了客餐厅空间并且进门视角凌乱;
2 , 餐厅需求是想打造一个吧台式餐台解决二人的简餐需求;
3 , 原始卫生间无法干湿分离给使用带来诸多不便;
4 , 原始卧室空间过大 , 空间浪费不知如何利用 。
格局规划与设计解决问题:
大胆将原始格局打破重新规划 , 在卧室多余的空间辟出给卫生间使用 , 将阳台1/4规划给淋浴房 , 这样光线及通风问题都得到了很好的解决 。
1 , 通过改造使原先的厨卫空间形成客餐厅 , 将卫生间及厨房搬移 。 卫生间位置隐蔽 , 厨房改至原先客厅空间形成开放式厨房 , 利用吧台中岛自然分割客餐厅 , 空间形成通透 。 并且进门视角开阔清爽;
2 , 就餐区域自热形成 , 且位置及动线合理;
3 , 卫生间转移 , 不仅实现干湿分离 , 更在过道另一边实现储物空间增加储备能力 。 且动线二合一省出通过空间;
- 在明知道宝宝是畸形的情况下,还要坚持生下宝宝,到底是爱宝宝、还是害了宝宝呢?
- 怀孕的时候老会哭,对宝宝有影响吗?
- 如何刺激宝宝脑细胞发育?
- 枕秃的原因是什么?
- 2周岁的宝宝该怎么教育?
- 宝宝最近上火了,是不是和喝的奶粉有关?
- 夏季开胃饮食宝典
- 如何抓住宝宝智力发育的黄金时期?
- 婴儿肚子胀气如何快速消除?
- 四维彩超能看到男女吗?
特别声明:本站内容均来自网友提供或互联网,仅供参考,请勿用于商业和其他非法用途。如果侵犯了您的权益请与我们联系,我们将在24小时内删除。
