90㎡两居室,老公不听劝硬把阳台包入客厅,装完朋友看了都说好!
----90㎡两居室 , 老公不听劝硬把阳台包入客厅 , 装完朋友看了都说好!//----
----90㎡两居室 , 老公不听劝硬把阳台包入客厅 , 装完朋友看了都说好!//----
----90㎡两居室 , 老公不听劝硬把阳台包入客厅 , 装完朋友看了都说好!//----
----90㎡两居室 , 老公不听劝硬把阳台包入客厅 , 装完朋友看了都说好!//----
----90㎡两居室 , 老公不听劝硬把阳台包入客厅 , 装完朋友看了都说好!//----
----90㎡两居室 , 老公不听劝硬把阳台包入客厅 , 装完朋友看了都说好!//----
----90㎡两居室 , 老公不听劝硬把阳台包入客厅 , 装完朋友看了都说好!//----
"multi_version":false
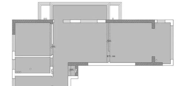
初看原始户型图 , 两室一厅 , 还带双阳台 , 格局还算规整 。 但没有独立的餐厅区域 , 以及存储空间不足 , 也是很明显存在的问题 。
经过设计师改造后:
① 将两个阳台重新进行了规划 , 主卧阳台用作晾晒衣物的生活阳台 , 客厅阳台包入客厅 , 释放出餐厅位置;
② 全屋定制柜子 , 包括飘窗柜、餐边柜、大衣柜等 , 大大增加了储物空间 。
一进门的左手边是厨房 , 选择自带黑板墙的谷仓门 , 一来起到装饰作用 , 二来还可以节省空间 。
厨房是狭长型的 , 考虑到空间的最大化利用 , 于是设计成“U形式”的布局 , 动线更加合理流畅 , 并且还拥有了更多的储物空间 。
再进来一点就是卫生间区域 , 将洗手台外放 , 满足了干湿分离的功能;洗手台上方大胆地采用绿色作为主色调 , 加上白色的调和 , 在视觉上给人一种清新自然的氛围感 。
设计师将阳台包入客厅后 , 现场制作了一排超大的沙发 , 本身是可储物的抽屉设计 , 大大增加了客厅的储物空间;同时这么大的窗户 , 也极大的改善了客厅的采光问题 。
特别声明:本站内容均来自网友提供或互联网,仅供参考,请勿用于商业和其他非法用途。如果侵犯了您的权益请与我们联系,我们将在24小时内删除。
