140平的复式大宅,小清新的北欧风,还有个大露台
----140平的复式大宅 , 小清新的北欧风 , 还有个大露台//----
----140平的复式大宅 , 小清新的北欧风 , 还有个大露台//----
----140平的复式大宅 , 小清新的北欧风 , 还有个大露台//----
----140平的复式大宅 , 小清新的北欧风 , 还有个大露台//----
----140平的复式大宅 , 小清新的北欧风 , 还有个大露台//----
齐家小菜今天分享的是一套一楼建筑面积140平米的北欧风三居室案例 , 房子位于顶层 , 是个跃层的户型 , 二楼还有一个开放式的休闲区和大露台 , 让人羡慕不已 。 整个房子在硬装上非常简洁 , 设计师通过精致的软装、壁纸来打造这个舒适的家 。
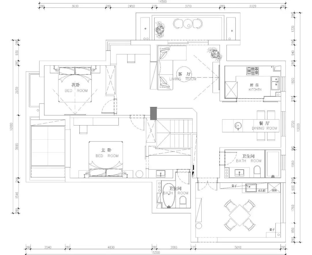
一层平面布置图
二层平面布置图
入户有个独立的小花园 , 走过玄关门厅之后就到了室内 , 利用楼梯底部的空间做了嵌入式的柜子 , 木质扶手加上黑色护栏显得格外精致 。
在楼梯边上的就是餐厅空间 , 一个中央岛台和餐桌椅结合起来的餐厅 , 方便屋主把餐厅直接作为西厨使用 。
餐厅的边上就是封闭式的中厨空间 , 蓝色的橱柜搭配白色的大理石墙砖和吊柜 , U字型的橱柜布局也满足了厨房的收纳、使用需求 。
在楼梯的另一侧是客厅空间 , 电视背景墙直接留白 , 高低不平的圆茶几搭配电视柜来满足客厅收纳需求 。 浅灰色的布艺沙发和蓝色、白色的条纹地毯结合起来 , 非常好看 。
在客厅沙发背景墙的后方是一个小书房空间 , 墙面摆放一幅陶瓷盘的装饰画 , 靠着窗户做了L型的转角书桌 , 让可利用面积得以提升 。
齐家小菜很喜欢这个主卧室的设计 , 床头背景墙上铺贴了浪漫的壁纸 , 整体以粉色系为主的设计 , 也让这个主卧显得精致而又优雅 。
次卧的设计就会偏于素雅一些 , 灰色系的床搭配蓝色系的床品 , 墙面刷成了浅灰色 , 整体简洁的设计让整个卧室变得更加的沉稳 。
特别声明:本站内容均来自网友提供或互联网,仅供参考,请勿用于商业和其他非法用途。如果侵犯了您的权益请与我们联系,我们将在24小时内删除。
